Views: 9
Erstellt am 26 Jan. 2026 | zuletzt bearbeitet vor 3 Wochen ago von Steffen
Das Braun Regie 450S ist ein Radio aus den Jahren 1976 bis 1978. Es spielt auf LW, MW, KW und UKW. Es ist komplett transistorisiert.
https://www.radiomuseum.org/r/braun_regie_450s_cev450scev_450.html
- Hersteller: Braun
- Typ: Regie 450S (CEV450S)
- Baujahr: 1976 – 78
- Empfangsprinzip: Superhet
- Wellenbereiche: LW, MW, KW, UKW
- Spannungsarten: Wechselspannung
- Zustand Gehäuse: befriedigend
- Zustand Technik: ungeprüft
- Herkunft: Privatkauf
- Datum: 01/2026
- Kosten: 20 € zzgl. Versand
Inhaltsverzeichnis
Zustand bei Erhalt
Der Verkäufer schreibt:
[…] Klassisches Design aus den 80ern von Braun. […] funktioniert nicht, ich verkaufe es deshalb als defekt und Ersatzteilspender oder für Bastler zur Reparatur. […] altersgemäßige Gebrauchsspuren.
[…]
Bilder des Verkäufers (teilweise bearbeitet):






Instandsetzung
Spannungsversorgung
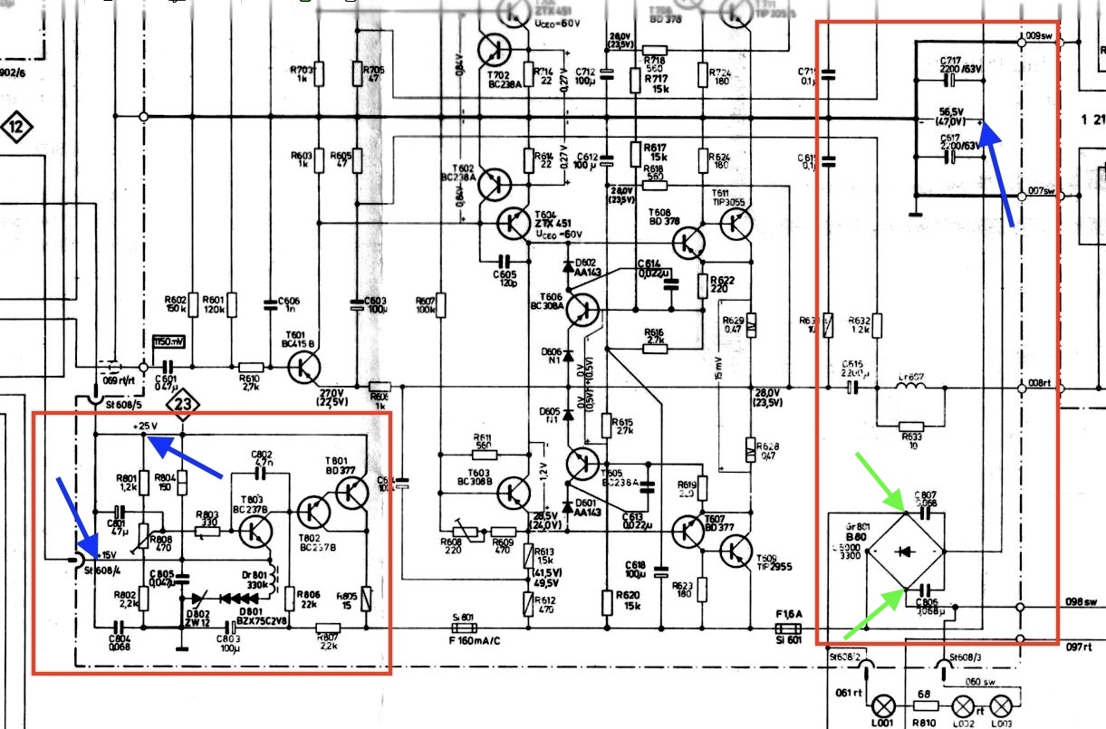
Auch bei den Transistorgeräten beginne ich mit der Prüfung der Spannungsversorgung.
Im folgenden Bild habe ich mit rot die beiden Bereiche gekennzeichnet, die die benötigten Spannungen erzeugen.
- Rechts wird auf „klassische Weise“ ausgangs des Gleichrichters die pulsierende Gleichspannung mittels C617 und C717 geglättet und der NF-Stufe zugeführt. Die beiden grünen Pfeile markieren den Anschluss der Sekundärwicklung des Netztransformators.
- Links markiert ist ein Spannungsregulator, der zum einen mittels zweier Transistoren in Darlington-Schaltung (T801 und T802) 25 V liefert und zum anderen über eine Zenerdiode und einer weiteren nachgeschaltete Dioden (D801 und D802) 15 V bereitstellt.

Die Zenerdiode (Typ ZW12) reguliert auf 12 V, die D801 ist eine BZX75-C2V8, die im Bereich zwischen 2,66 und 2,94 V reguliert. Nominal sind es 2,8 V. So ergeben sich als Gesamtspannung 12 V + 2,8 V = 14,8 V.
BZX75Kondensatoren
Ein Problem werden gealterte Elektrolytkondensatoren sein. Es wäre sonst das erste Mal…
Die Serviceanleitung beinhaltet eine Teileliste, anhand der ich meine Bestände prüfen und ggf. nachbestellen kann.
